授業風景
景観建築学科3年生 R6年度【景観建築設計演習Ⅲ】
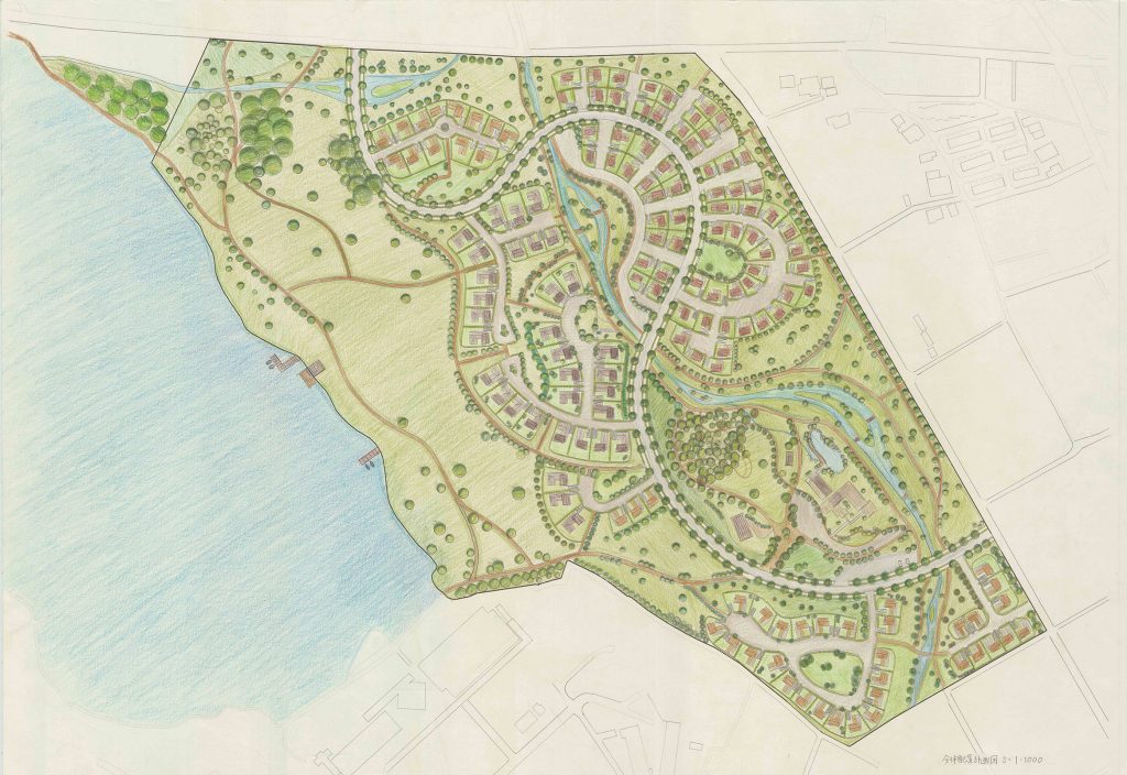
池を中心とした集落と公園
池の周辺に住宅地区と小公園を計画する都市計画の課題です。兵庫県内の都市近郊にある、ため池に隣接した20haの広大な敷地に150戸の戸建住宅を公園と一体的に計画しました。コモンと呼ばれる住民の共有庭、敷地内を流れる用水路を活用したビオトープ、葦が自生する池の水辺を遊歩道でつなぎコミュニティと生態系が共存する住宅都市を描きました。
講評会
2024年7月22日,23日
担当:杉田教授、田崎教授、塚本非常勤講師

7月22日,23日に講評会を実施し、図面や透視図、模型を使って学生全員が発表しました。外部講師として糸谷先生(総合計画機構)にご参加いただきました。
学生の作品





学生の作品




学生の作品



学生の作品



学生の作品



